Nemesia Residence
Nemesia Residence is a freehold landed residential development located within the fast-growing Sunsuria City township in Sepang, developed by Sunsuria Berhad. Positioned near Xiamen University Malaysia, the project forms part of a larger master-planned environment that integrates education, residential living, and commercial components into a cohesive and future-ready township. Set within a strategically planned area just minutes away from KLIA and KLIA2, Nemesia Residence benefits from a location that is increasingly gaining attention due to infrastructure expansion and economic activity in the southern Klang Valley corridor. Unlike mature urban areas, Sunsuria City is still in its growth phase, offering buyers an opportunity to enter at a relatively early stage with strong long-term appreciation potential driven by surrounding developments, institutional presence, and improving connectivity. The development is designed as a low-density landed enclave, featuring primarily double-storey terrace homes that prioritise space, functionality, and family living. With built-up sizes typically ranging from around 1,800 to over 2,000 square feet, the homes are well-suited for growing families and upgraders seeking more space compared to high-rise alternatives. The layouts commonly include 4-bedroom configurations, ensuring practicality and flexibility for multi-generational living. A key highlight of Nemesia Residence is its education-driven ecosystem, anchored by the presence of Xiamen University Malaysia, which not only enhances the township’s prestige but also generates consistent demand for rental and accommodation. This makes the development appealing not only for own-stay buyers but also for investors targeting the student and academic market. In terms of connectivity, the project is supported by major highways such as ELITE Highway, MEX Highway, and SKVE, providing direct links to Kuala Lumpur, Putrajaya, and Cyberjaya. Additionally, its proximity to the airport further enhances its strategic value, particularly for professionals working in aviation, logistics, or international business sectors. From a market positioning perspective, Nemesia Residence is a mid-range landed property that balances affordability with long-term growth potential. Compared to landed homes in more central Klang Valley areas, it offers a more accessible price point while still benefiting from a branded township environment and freehold tenure. It is best suited for own-stay buyers, young families, and medium-term investors who are willing to ride on the future development of the area. In conclusion, Nemesia Residence represents a forward-looking residential opportunity within Sunsuria City — combining landed living, educational ecosystem, and township growth potential. As the area continues to develop into a more mature and self-sustaining hub, the project is well positioned to deliver both a comfortable living environment and steady long-term value appreciation.
N0000620
Sepang, Selangor
Terrace House
10.7 acres
Residential
Leasehold
Terrace/Link House
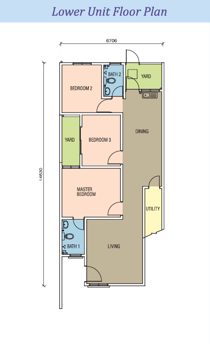
1760 sqft
281
3
2
-
2027
Download Now
Sepang, Selangor
13/4/2026
- Playground
- Park
- Jogging Track
- Community Area
- ELITE Highway
- MEX Highway
- SKVE Highway
- KLIA / KLIA2
- Xiamen University Malaysia
- SMK Dengkil
- SK Dengkil
- Sunsuria City Commercial
- IOI City Mall (Putrajaya nearby)
- Mitsui Outlet Park KLIA
- Hospital Serdang
- Klinik Dengkil
Sepang, Selangor



