Eco Forest – Birchpark
Eco Forest – Birchpark is a thoughtfully planned freehold landed residential enclave nestled within the expansive Eco Forest township in Semenyih, developed by the reputable Eco World Development Group Berhad. Designed as one of the final phases of this 500-acre master-planned community, Birchpark reflects a refined balance between modern living and nature-inspired tranquility, making it a highly appealing choice for homeowners seeking both comfort and long-term value. Set against a lush backdrop of forest landscapes and green open spaces, Birchpark embraces the concept of eco-centric living, where residents can enjoy a peaceful environment away from the congestion of the city. The development features a mix of double-storey terrace houses and co-home units, carefully crafted to accommodate a wide range of lifestyles—from young families to upgraders seeking larger, more comfortable living spaces. The layouts are practical yet spacious, emphasizing functionality, natural lighting, and ventilation to enhance everyday living. What truly sets Birchpark apart is its integration into a comprehensive township ecosystem. Residents are not just buying a home, but becoming part of a well-established community complete with landscaped parks, recreational facilities, and essential amenities. The township’s design prioritizes safety and exclusivity, with gated and guarded precincts that offer peace of mind alongside a strong sense of community. Strategically located in Semenyih, the development enjoys connectivity to key highways such as LEKAS and the Cheras–Kajang Highway, providing access to nearby townships and urban centres. While it is not positioned as a city-centre property, its appeal lies in offering a serene suburban lifestyle with long-term growth potential, especially as the surrounding areas continue to develop. In essence, Eco Forest – Birchpark is not merely a residential project, but a lifestyle destination. It represents a shift towards more sustainable, spacious, and community-driven living—making it particularly suitable for those who value nature, privacy, and the comfort of a well-designed landed home in a growing township.
N0000567
Semenyih, Selangor
Townhouse
515 acres
Residential
Freehold
Townhouse
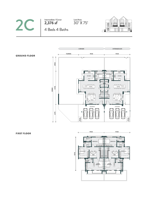
2065-3761 sqft
184
3-4
2-4
-
2028
Semenyih, Selangor
30/3/2026
- Central Park
- Jogging Track
- Playground
- Outdoor Gym
- Community Pavilion
- 24-hour Security
- LEKAS Highway
- Cheras–Kajang Highway
- SILK Highway
- University of Nottingham Malaysia
- Tenby International School
- SK Bandar Rinching
- Setia EcoHill Mall
- Eco Majestic Commercial Centre
- Lotus’s Kajang
- KPJ Kajang Specialist Hospital
- Hospital Kajang
Semenyih, Selangor
Eco Majestic Development Sdn Bhd
19th Floor, Menara EcoWorld, BBCC, 2, Jln Hang Tuah, Bukit Bintang, 55100 Kuala Lumpur, Wilayah Persekutuan
(o) : 0321104255
Semenyih, Selangor
(o) : 0321104255






