A-Park
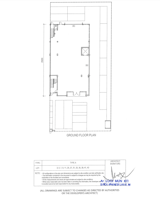
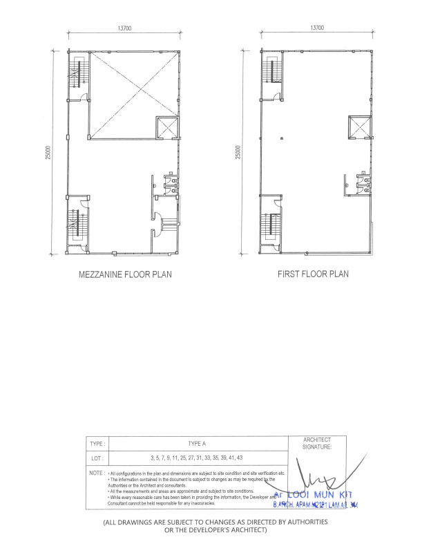
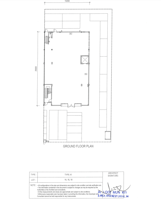
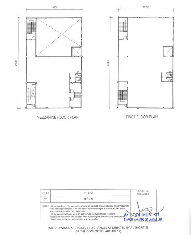
A-Park Bangi is a modern industrial park development located in Bandar Baru Bangi, Selangor, developed by Ancubic Group. Unlike residential projects, this development is specifically designed as a purpose-built industrial and commercial hub, catering to businesses in sectors such as logistics, manufacturing, warehousing, and engineering. Strategically positioned within one of Klang Valley’s key industrial corridors, A-Park Bangi benefits from its proximity to established commercial zones and mature industrial areas. The project is surrounded by existing factories and warehouses, creating a ready business ecosystem where companies can operate efficiently without waiting for the area to develop. Spanning approximately 20 acres, the development is planned as a low-density industrial estate, featuring a limited number of semi-detached and detached factory units across multiple phases. This setup ensures better accessibility, smoother logistics flow, and more privacy for each business operation compared to high-density industrial zones. A-Park Bangi is designed with a strong emphasis on functionality and efficiency, offering flexible layouts that combine warehouse, office, and showroom components within a single unit (4-in-1 concept). This allows businesses to centralise operations in one location, improving workflow and reducing operational costs. Connectivity is one of the project’s strongest advantages. The development enjoys direct access to major highways such as the North-South Expressway (PLUS), SKVE, and SILK Highway, enabling seamless transportation to Kuala Lumpur, Putrajaya, and other industrial hubs. Its location also provides convenient reach to KLIA and KLIA2 within approximately 30–40 minutes, making it highly suitable for logistics and export-oriented businesses. From a market positioning perspective, A-Park Bangi is clearly targeted at business owners and investors in the industrial sector, rather than residential buyers. With large built-up sizes and pricing starting from around RM5M+, the development is positioned as a mid- to high-value industrial asset, where the key value lies in land size, operational efficiency, and strategic location rather than lifestyle features. Ultimately, A-Park Bangi represents a new generation of industrial development — one that goes beyond traditional factory spaces by integrating functionality, accessibility, and modern design. For companies seeking a well-located, efficient, and future-ready industrial base within the Klang Valley, the project offers a compelling long-term platform for business growth and operational success.
N0000617
Bangi, Selangor
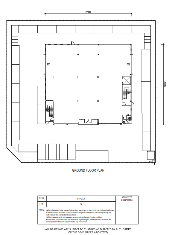
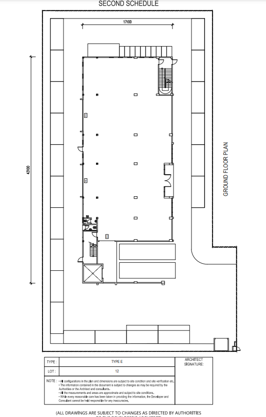
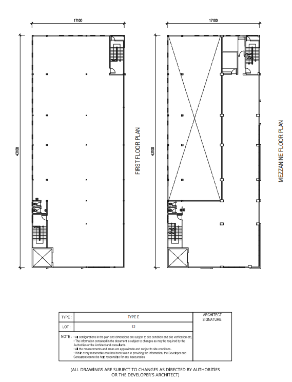
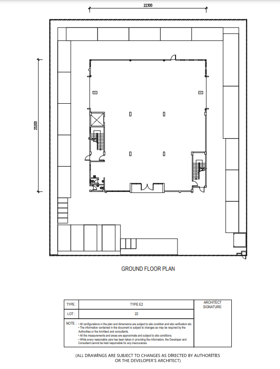
Semi-Detached Factory
20 acres
Industrial
Leasehold
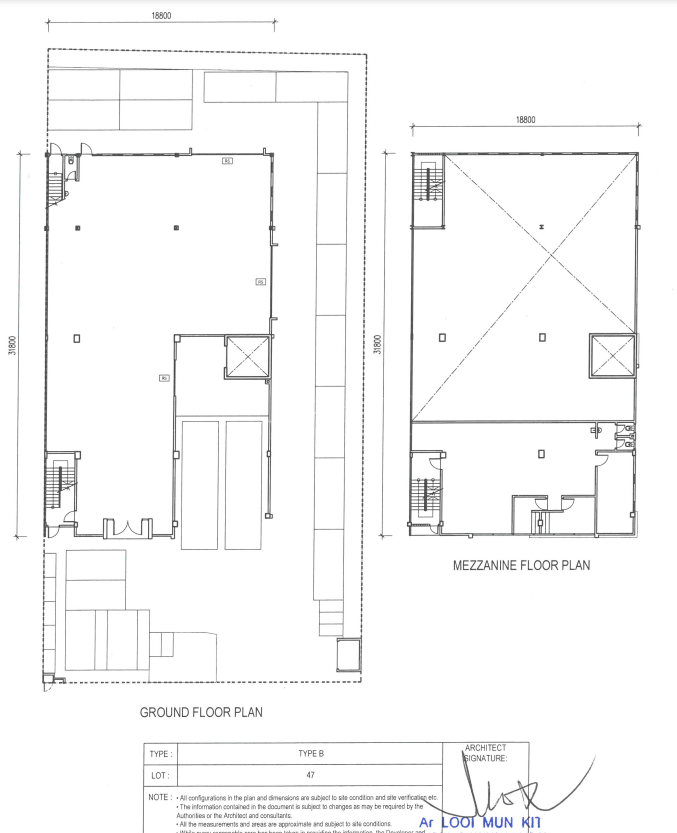
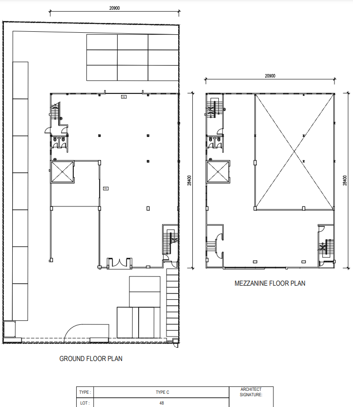
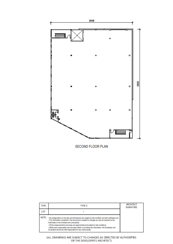
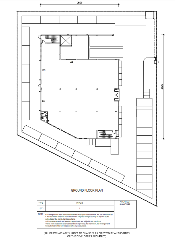
Semi-Detached Factory
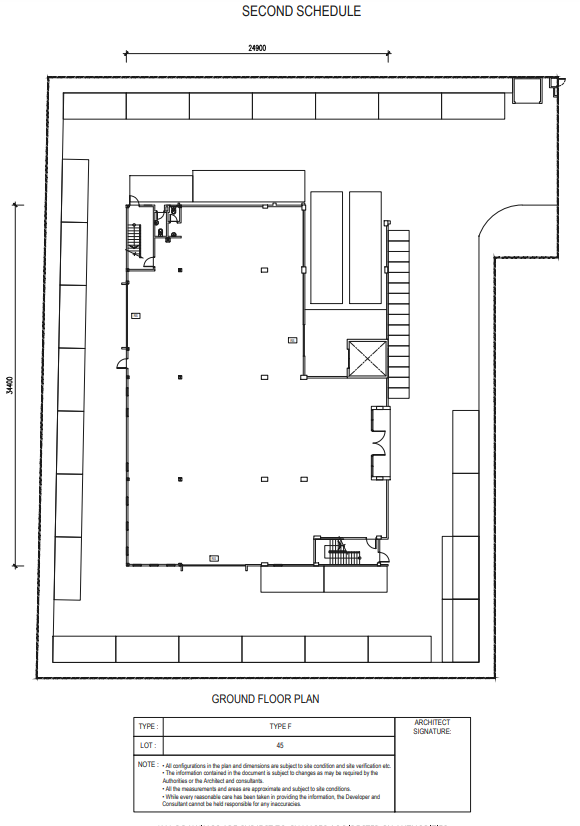
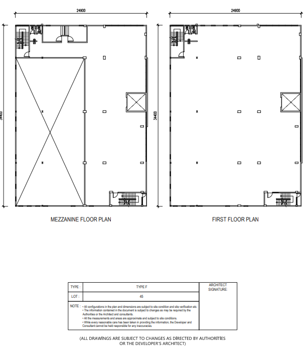
9535-31514 sqft
49
-
2027
https://ai-industrialpark.com/
Bangi, Selangor
6/4/2026
- Gated & Guarded
- Cargo Lift / Hoist
- High Ceiling (32 ft)
- Heavy Floor Loading
- Showroom Space
- North-South Expressway (PLUS)
- SKVE Highway
- SILK Highway
- Kajang / Putrajaya Link
Bangi, Selangor




















